Skip To Content

1971 Imperial Dr

Bullhead City, AZ 86442
  • $122,000
  • STATUS: Active
  • ON SITE: 114 Days
  • MLS #: 1036458
UPDATED: 33 min ago
$122,000
  • 2
    BEDS
  • 0.09
    ACRES
  • 1
    BATHS
  • 0
    1/2 BATHS
  • 714
    SQFT
  • $171
    $/SQFT
Neighborhood:
Type:
Manufactured Home
Built:
1972
County:

School Ratings & Info

Description

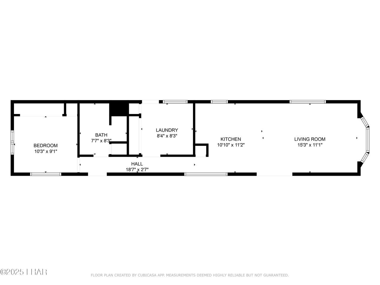
This 2 bed 1 bath singlewide factory built home has a fantastic corner lot location! Just one turn off Marina, you will have easy access to a main road, close to schools & shopping and best of all the Colorado River and huge park and launch ramp less than 3 min away. Plenty of parking inside your fenced-in yard! Home needs some love but is in livable condition, will be sold as-is. There is a spacious covered front porch with new plywood, great for hanging out and enjoying the desert climate. Gas range in the kitchen and refrigerator, washer, and dryer included. Utility shed around back. Second bedroom was converted to indoor laundry room but could easily be converted back to a bedroom or office space. This could be the spot waiting for your finishing touches.

Monthly Payment Calculator

Lake Havasu Association of REALTORS®.

© 2025 Lake Havasu Association of Realtors. All rights reserved. IDX information is provided exclusively for consumers' personal, non-commercial use and may not be used for any purpose other than to identify prospective properties consumers may be interested in purchasing. Information is deemed reliable but is not guaranteed accurate by the MLS or Lake Havasu Team Hatchell | Coldwell Banker Realty. Data last updated: 2025-11-16T13:39:24.457.
www.lakehavasuteamhatchell.com/homes/166233659
Print Image

1971 Imperial Dr Bullhead City, AZ 86442

  • Price: $122,000
  • Status: Active
  • On Site: 114 Days
  • Updated: 33 min ago
  • MLS #: 1036458
2
Beds
1
Baths
0
½ Baths
0.09
Acres
714
SQFT
$171
$/SQFT
1972
Built
Neighborhood:
Riveria Mobile Gardens
County:
Mohave
Area:
16-Bullhead City
Property Description
This 2 bed 1 bath singlewide factory built home has a fantastic corner lot location! Just one turn off Marina, you will have easy access to a main road, close to schools & shopping and best of all the Colorado River and huge park and launch ramp less than 3 min away. Plenty of parking inside your fenced-in yard! Home needs some love but is in livable condition, will be sold as-is. There is a spacious covered front porch with new plywood, great for hanging out and enjoying the desert climate. Gas range in the kitchen and refrigerator, washer, and dryer included. Utility shed around back. Second bedroom was converted to indoor laundry room but could easily be converted back to a bedroom or office space. This could be the spot waiting for your finishing touches.
Exterior Features

Attached Garage YN No Construction Materials Vertical Siding Exterior Features [] Fencing Back YardChain LinkFront Yard Garage Spaces 0 Lot Features Corner LotLevel to StreetRd Maintained-Public Other Structures [] Parking Features Side Parking 8-10 Ft + Wide Patio And Porch Features [] Pool No Pool Features [] Roof Urethane Waterfront Features [] Window Features []

Interior Features

Appliances Water Heater-Natural GasDryer-Gas Cooling Multi UnitsWall/Window Unit(s) Cooling YN Yes Dryer Gas YN Yes Fireplace Features [] Flooring Tile Heating Electric Heating YN Yes Interior Features Laminate Counters Laundry Features []

Property Features

Association Amenities [] Community Features [] Electric [] Green Information Solar None Green Water Conservation [] HOA No Land Lease YN No Listing Terms Cash New Construction YN No Pets Allowed [] Property Sub Type Manufactured Home Public Sewer YN Yes Security Features [] Sewer Public Sewer Special Listing Conditions [] Tax Annual Amount 161 Tax Year 2024 Utilities Electricity AvailableNatural Gas Available Water Source City Water Source City YN Yes

Listing information © 2025 Lake Havasu Association of REALTORS®.
Listing provided by Kenneth Sondgeroth of Sondgeroth Real Estate Group, LLC: 928-716-8949.

Lake Havasu Association of REALTORS®.

© 2025 Lake Havasu Association of Realtors. All rights reserved. IDX information is provided exclusively for consumers' personal, non-commercial use and may not be used for any purpose other than to identify prospective properties consumers may be interested in purchasing. Information is deemed reliable but is not guaranteed accurate by the MLS or Lake Havasu Team Hatchell | Coldwell Banker Realty. Data last updated: 2025-11-16T13:39:24.457.
 
https://bt-photos.global.ssl.fastly.net/lakehavasu/1280_boomver_1_1036458-2.jpg https://bt-photos.global.ssl.fastly.net/lakehavasu/1280_boomver_1_1036458-2.jpg https://bt-photos.global.ssl.fastly.net/lakehavasu/1280_boomver_1_1036458-2.jpg
Logo
Lake Havasu Team Hatchell | Coldwell Banker Realty
450 S Lake Havasu Ave Suite 206
Lake Havasu City AZ, 86403